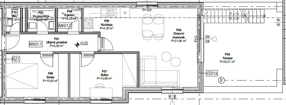
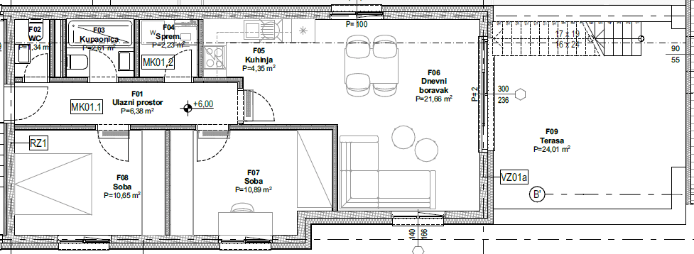
| Ukupna površina | 60.11 m2 |
| Ulazni prostor | 6.38 m2 |
| Kupaonica | 2.61 m2 |
| WC | 1.34 m2 |
| Kuhinja | 4.35 m2 |
| Spremište | 2.23 m2 |
| Dnevni boravak | 21.66 m2 |
| Soba | 10.89 m2 |
| Soba | 10.65 m2 |
| Terasa | 24.01 m2 |
| Krovna terasa | 86.94 m2 |
| Cijena | 237.200 € |
Obavezna je kupnja 2 parkirna mjesta po pojedinacnoj cijeni od 8 000 eura.
Pošaljite upit
Kontaktirajte nas za sve što Vas zanima vezano za Stan F,
rado ćemo odgovoriti na Vaše upite.

_1920_1080_80.jpg)