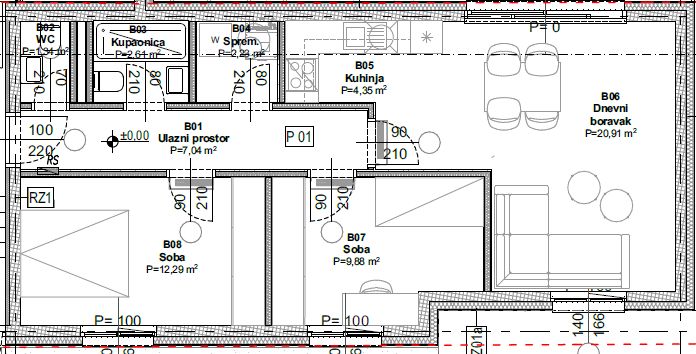
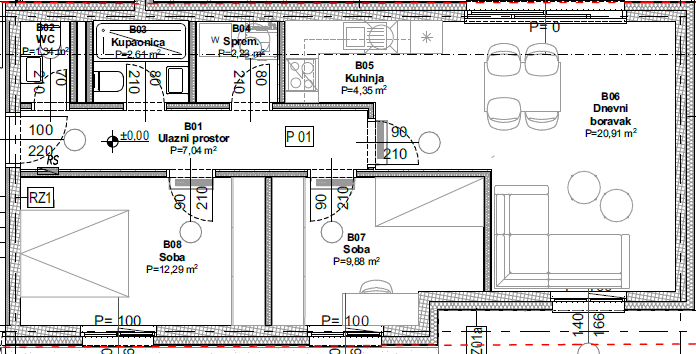
| Ukupna površina | 60.65 m2 |
| Ulazni prostor | 7.04 m2 |
| Kupaonica | 2.61 m2 |
| WC | 1.34 m2 |
| Kuhinja | 4.35 m2 |
| Spremište | 2.23 m2 |
| Dnevni boravak | 20.91 m2 |
| Soba | 9.88 m2 |
| Soba | 12.29 m2 |
| Vrt | 58.73 m2 |
| Cijena | 179.610 € |
Obavezna je kupnja vanjskog parkirnog mjesta po cijeni od 8 000 eura te spremišta po cijeni od 4000 eura.

